THE BEGINNING
About two years ago I started my quest for an analog console. I wanted something small, flexible, powerful, sonically amazing, and visually gripping and unique. This is the story of how I came to put together a custom API console.
SUMMER 2010 — I BECOME AN "API GUY"
After a lot of thought, I finally settle in on the API Legacy console as the sound for me. On a more practical level, I like that API is still in business and have a great service department. There's no way I can afford a full-on Legacy, so I try a few 7600 channels summed through the 7800 master module and realize immediately that this is, in fact, a small 4-bus, 4-aux Legacy console. I see pictures on-line of a 24-channel built from 7600s with vertically printed face-plates and everything clicks. I do a lame rendering in Google Sketchup.
SEPTEMBER 2010 — THE DESIGNER AND BUILDER IS FOUND
As I sell off various pieces of outboard gear in order to purchase a small collection of 7600s, I put the feelers out for a builder of the desk and got the name UM Project from Andy Hong. I take one look at the website and am on the phone to Francois Chambard that day.
EARLY OCTOBER 2010 — DESIGN CONCEPTS
I sign on with Francois, explain that the console has to defy conventional studio aesthetics (dentist office, WWII submarine, 70s disco club) and capture the spirit of modernist design. The only consoles we reference are EMI desks from Abbey Road, SSL's AWS900 and Quad Eights, but the real inspirations are typewriters and Telecasters. I get back five amazing designs. In a display of sharp decisiveness, I choose #2 on the spot.
MID OCTOBER 2010 — INSPIRED BY ICELAND
I return to Iceland for a week and decide that the console needs to reflect some of the landscape, fashion and architecture I see there. Photos are emailed to Francois daily. I visit Valgeir Sigursson's Greenhouse Studios and confirm my suspicions that clean modern design + recording studio = my kind of vibe.
NOVEMBER 2010 - THE 1RU S.N.A.F.U.
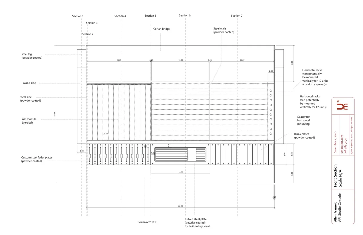
Francois and I run into the senseless conundrum that 19 is not evenly divisible by 1.75, the measurements of a single rack space — a legitimate US military S.N.A.F.U. After countless discussions, we finally come up with a solution that allows for the left and right bays of the console to hold eleven units either vertically or horizontally. My assistant Nicole Pettigrew gives me her best are-you-on-drugs look and asks, "Who the fuck builds a twenty-two channel console?" Back to the drawing board yet again to make it a proper twenty-four channel board. We compensate for the extra space by adding a Sharpie-holder next to the horizontal bays and finally settle on a totally flexibly 24-channel board. Either of the left and right bays can hold either twelve vertical or eleven horizontal 1RU units.
DECEMBER 2010 — THE COLOR CRISIS
Roles are completely reversed for me as I become "the crazy client." Now I am sabotaging a collaborative creative project with fear, indecision, and obsession over non-essentials. Francois handles his client smoothly and firmly. I finally choose gray and moss powder-coating, walnut and black Corian, and the console reflects how I see parts of Iceland.
JANUARY 2011 — THE MOCKUP, WE ADD WHEELS, FRANCOIS PROVES A POINT
I based the ergonomics of the console around the speaker height from Mavericks Studio NYC (34"), the armrest of the SSL AWS900 (28" high) and the rest of the console fell in around those two critical dimensions. To confirm that these dimensions will be right, Francois built a mockup that felt perfect when I sat down.
About the same time, Andy Hong chimed in with concerns over the stability of the console, the ability to move it safely and easily, and it's pressure on the floor. Francois loads the mockup with weights and stands on the armrest to prove the structural integrity of his design. As he's standing on it we discuss how heavy it will be (over 500 lbs loaded), and someone suggests wheels. Francois nonchalantly says, "Sure, we can do that. I put wheels on a kitchen once."
I cheer Francois on, sign off on the technical drawings and let him get to building.
LATE JANUARY 2011 — FADER FACE PLATES
With the help of Dan Garcia (custom console featured in Tape Op #71) and the API service department, I figure out how I want to calibrate the console, which determines where unity gain will land on the Alps faders. I then recall Bob Power(Tape Op #60 saying over Thanksgiving dinner, "You don't really need to know where dBs are on a fader. You really just need unity and then something simple like +1, +2, -1, -2, -3." Thank you, Bob! Francois' very first design is perfect, and then we apply Steven Massey's(Tape Op #68) "Listen" plug-in concept to the fader plates.
FEBURARY 2011 — IT IS DONE!
Everyone's jaw drops when the gear is dropped In for the first time and we see it finished. Francois builds a set, and professional architecture photographer Francis Dzikowski takes these stunning photographs. Thanks to Matthew Agoglia for the NS-10s for the shoot, and to Eric Amble for pointing out that the tweeters belong on the outside - dammit!
Francois always insisted that the sides of the console were where he got to show off as there is no gear on the sides. The way the steel legs join the walnut body is derived from some of Francois' more recent table designs — the legs are 3/4" powder-coated steel.
The wheels on the rear legs allow for instant and relatively effortless console moves. I can't quite lift it loaded, but two people can do it in a moment, like a big wheelbarrow.
Notice the photo on the computer monitor — I took this about three hours outside Reykjavik on the southern coast of Iceland, and the colors are mirrored in the photo shoot. Meters are Logitek 4VUB units, salvaged from a film post-house that the recession closed down.
Francois would call the intersection of the wood, metal and gear a "very nice design moment." Sounds like something I'd say in a mix session regarding a moment in an arrangement when things all come together in a distinctive way.
Fader plates are powder coated steel that has then been laser engraved back down to the metal. As corrosion and rust sets in on the steel, legibility will increase. The wood strip is for board tape. Arm rest is Corian, a kitchen counter top material ready for constant abuse.
My desire to be able to move this console easily for relocation or even for remote projects led to the complete collapsibility, as seen in this "exploded shot." It would take a while to disassemble, but I could literally move the console myself in a small car if needed. The level of craftsmanship and design that has gone into the console body is very evident in this photo.
Every draft of a sketch or technical drawing from Francois always ended with this big "THANKS" on the last page. So, thanks for looking around here. I also owe a big thanks to these folks...
Francois Chambard: 'nuff said. The man is a fearless maniac and a brilliant artisan. Andy Hong: for hooking me up with UM Project and for all the great insight along the way. Bobby Lurie: countless conversations about the project before it began, even more while it was going on, and the first to listen to the 7600s through the master section and say, "Holy shit, you have to do this!" Joel Hamilton and Eric Ambel: excellent cheerleaders, and two of the first to really "get it" and encourage me to go for it. That was a lot of "likes" on Facebook, guys, thanks! Shelley Kay: for living with and indulging this obsession. Nicole Pettigrew: for always saying, "Dude, this is going to be so cool," and for the five million tasks thrown her way. Bob Power: for the opportunity to work on the API console at NYU which cemented my decision to become an "API guy." Also for reality checks, encouragement and the "screw dBs" philosophy of fader plate design. Radovan Maricic at API's Service Department: it would have been impossible to do this without his knowledge and help. This guy calls you back — right away. Radovan spurred me on throughout the project and helped me to get to know the 7600 from the inside out. Francis Dzikowski: for the amazing photography. Matthew Agoglia: NS10 loaner for the photo shoot.





